Pajude pst 9, Laagri

Hind: 138 900 €
Pind: 42.2 m²
Tubade arv: 2
Korrus/Korruseid: 3/5
Ehitusaasta: -
Seisukord: Uus
Energiamärgis: -
Aadress: Pajude pst 9, Nõmme, Laagri, Saue vald, Harjumaa

Uhiuus disainkorter männimetsa ümber!

UHIUUS DISAINKORTER LOODUSE KESKEL – RAHU JA STIILI TÄIUSLIK KOOSLUS!

NB! Korter on hetkel põhjalikus renoveerimises ja valmib jaanuaris 2026. Ostjal on suurepärane võimalus veel kaasa rääkida siseviimistluse, köögitehnika ja värvilahenduste osas! Korterit saab tulla vaatama juba praegu.

Korteri projekti ja sisekujunduse on loonud kogenud sisearhitekt, ning projekt on seadustatud ehitisregistris. Kõik on täiesti uus – aknad, torustik, elektrijuhtmestik, radiaatorid ja viimistlus.

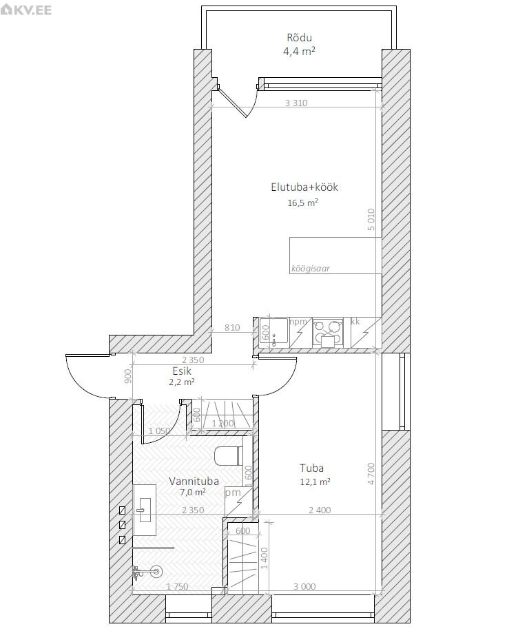
PLANEERING

Tegemist on unikaalse ja läbimõeldud planeeringuga koduga.
Avatud esikust pääseb:

Ülisuurde vannituppa aknaga,
Kahe aknaga magamistuppa,
ning avara elutoa ja avatud köögiga alasse, millelt pääseb suurele rõdule.

Rõdult ja igast aknast avaneb imeline männimetsa vaade – täielik rahu ja loodus igal sammul. Korter avaneb kolme suunda, mis tagab päikesevalguse terve päeva vältel!

SISUSTUS JA VIIMISTLUS

Korteri sisemuses on kasutatud kvaliteetseid ja maitsekalt valitud materjale:

kalasaba laminaatpõrandad,
suured 1200×600 vannitoaplaadid,
sisseehitatud segistid,
eritellimusmööbel tehtud köök ja garderoobid.

Hinna sees on juba:

kaks mahukat garderoobikappi (esikus ja magamistoas),
vannitoa sisustus ja tehnika,
disainvalgustid,
täielikult sisustatud köök koos baarilaua ja kvaliteetse Electroluxi integreeritud tehnikaga.

Kõik pistikud ja valgustuslahendused on nutikalt planeeritud.

Rõdu on kaetud hubase terrassilauaga – ideaalne koht hommikukohviks või õhtuseks puhkuseks.

MUU INFO

NB! Pildid korterist on illustratiivsed. See on näide, kuidas me oma projekte realiseerime.

Ostjale meie poolt tasuta kehtiv eksperthinnang nõutud summale, mis kiirendab kodulaenu otsuse saamise umbes kahe nädala võrra!

Võtmed notari tehingu päeval.

SPC Kinnisvara OÜ

Teie usaldusväärne partner kinnisvara valdkonnas!
Pöörduge meie poole ja jääte koostööga rahule!